KEIAI RESIDENCE 西所沢III 西所沢の1K賃貸アパート!|ピタットハウス新所沢店 (株)ノザワ産業

株式会社ノザワ産業営業時間:9:30〜17:30 定休日:毎週火曜日・水曜日
TOPページ
賃貸物件検索
所沢市の賃貸情報一覧
KEIAI RESIDENCE 西所沢III 西所沢の1K賃貸アパート

KEIAI RESIDENCE 西所沢III 西所沢の1K賃貸アパート 

  • 5.9万円 / 管理費: 無 / 共益費:3,500円
  • 間取り:1K / 専有面積:20.18m2
  • 敷金:0ヶ月 / 礼金:5.9万円 / 保証金:0ヶ月 / 敷引・償却: 0ヶ月-
【建物外観】  【間取】  【その他】  【その他】  【周辺】 西友西所沢店
【建物外観】 
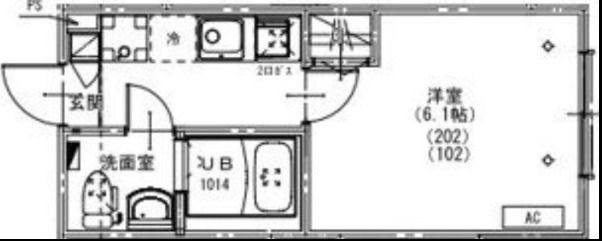
【間取】 
【その他】 
【その他】 
【周辺】 西友西所沢店
  • 【建物外観】 
  • 【間取】 
  • 【その他】 
  • 【その他】 
  • 【周辺】 西友西所沢店

【スタッフからのイチオシポイント!】KEIAI RESIDENCE 西所沢III

都市ガス,システムキッチン,バス・トイレ別,温水洗浄便座,浴室乾燥機,エアコン
埼玉県所沢市大字山口【西武池袋線 西所沢駅徒歩10分】にある1K賃貸アパートです。
新築築の2階建てのアパートです。
物件の広さは20.18m2で人気の1Kです。
※お部屋のもっと詳しい内容や入居時期、諸条件のご相談など、ホームページには掲載が間に合わず載せきれていない情報もございます。
気になることが御座いましたらお気軽にメールにてお問い合わせください。
04-2922-0110
ピタットハウス新所沢店 (株)ノザワ産業
お問い合わせNO:RHS-14200256

物件基本情報

所在地 埼玉県所沢市大字山口   周辺MAP
交通 西武池袋線 「西所沢駅」 徒歩10分
西武狭山線 「西所沢駅」 徒歩10分
種別 / 構造 アパート / 木造 主要採光面 東南 所在階 / 階数 1階 / 2階
築年月 新築  間取り 1K( 洋室6.1畳 ) 専有面積 20.18m2

物件詳細情報

損保 更新料 あり 5.9万円 鍵交換代 -
駐車場 なし 近隣駐車場   契約期間
借家区分
2年 普通
現況 未完成 入居可能日 2026年6月中旬 取引態様 媒介
保証人代行会社 仲介手数料 110% バイク置き場
その他費用
  • カギ発行料 27,500円
  • KEIAI CLUB 2,000円

設備詳細情報

キッチン
  • システムキッチン
バス・トイレ
  • バストイレ別
  • 浴室乾燥機
  • 温水洗浄便座
住空間
  • フローリング
  • エアコン
設備・サービス
  • CATV
条件・その他  ガス:都市 / 水道:公営 / 排水:下水
コメント 都市ガス,システムキッチン,バス・トイレ別,温水洗浄便座,浴室乾燥機,エアコン
備 考 *

学区情報

小学校区
()
中学校区
()
情報更新日:2026年05月20日 次回更新予定日:2026年06月03日
※各種情報と差異がある場合は現況優先となります
※物件情報の学区情報について
当サイト物件情報に記載されております通学区域(学区)情報は、国土数値情報ダウンロードサービスが提供する小学校区データ【2016年度】及び中学校区データ【2016年度】を元に加工したものですので、記載情報が現在の学区域と異なる場合がございます。国土数値情報ダウンロードサービスのWEBサイト上で記述通り、データは必ずしも正確とは言えません。また、通学区域(学区)は毎年見直しの対象となりますので、そちらを踏まえ学区情報は参考としてご活用下さい。

こちらの物件の空室状況

部屋番号 賃料 共益費 / 管理費 間取り 専有面積 敷金 礼金 お気に入り 物件詳細
105 7.5万円 3,500円 / - 1LDK 28.25m2 0ヶ月 7.5万円 お気に入り 物件詳細
104 7.5万円 3,500円 / - 1LDK 27.92m2 0ヶ月 7.5万円 お気に入り 物件詳細
103 7.5万円 3,500円 / - 1LDK 27.94m2 0ヶ月 7.5万円 お気に入り 物件詳細
102 5.9万円 3,500円 / - 1K 20.18m2 0ヶ月 5.9万円 お気に入り 物件詳細
101 5.9万円 3,500円 / - 1K 20.35m2 0ヶ月 5.9万円 お気に入り 物件詳細
205 7.8万円 3,500円 / - 1LDK 28.25m2 0ヶ月 7.8万円 お気に入り 物件詳細
204 7.8万円 3,500円 / - 1LDK 27.92m2 0ヶ月 7.8万円 お気に入り 物件詳細
203 7.8万円 3,500円 / - 1LDK 27.94m2 0ヶ月 7.8万円 お気に入り 物件詳細
202 6.2万円 3,500円 / - 1K 20.18m2 0ヶ月 6.2万円 お気に入り 物件詳細
201 6.2万円 3,500円 / - 1K 20.35m2 0ヶ月 6.2万円 お気に入り 物件詳細
04-2922-0110
ピタットハウス新所沢店 (株)ノザワ産業
お問い合わせNO:RHS-14200256

この物件に似た物件をチェック!

  • 賃貸アパート 6万円

    西所沢駅 徒歩3分

    ワンルーム(22.58u)

    洗濯機置場 / フローリング / ロフト / 室内物干し / シャッター

  • 賃貸アパート 6.6万円

    西所沢駅 徒歩6分

    1K(20.94u)

    温水洗浄便座、洗面所独立、バストイレ別、追い焚き、システムキッチン

  • 賃貸アパート 6.4万円

    西所沢駅 徒歩3分

    1K(25.25u)

    西所沢駅徒歩3分☆2018年築の1K☆オートロック

  • 賃貸アパート 6.8万円

    西所沢駅 徒歩10分

    3DK(57.14u)

    浴室は追い焚き付き・TVモニターフォンがあり来客時も安心


閲覧した物件の履歴

閲覧した物件の一覧を見る

最近検索した条件一覧



気になったら今すぐ!カンタンお問合せ



お問合せ内容必須
【備考欄】
希望条件・来店希望日・その他質問がございましたらご記入ください。
お客様情報
お名前必須
連絡先必須 メールアドレス
電話番号



※ご入力いただいたお客さまの個人情報は、「個人情報の取扱いについて」に基づき適正に取り扱います。必ずお読みになり、同意の上お問い合わせください。




※ご記入いただいたメールアドレス宛てに、お問合せ内容の確認メールをお送りいたします。
※Yahoo!メールなどのフリーメールをご利用の場合、迷惑メールフォルダに入る場合があります。
 迷惑メールのフォルダ・設定等をご確認下さい。
 


▲ページのTOPへ戻る


お問合せはこちら

ピタットハウス新所沢店 (株)ノザワ産業 04-2922-0110

お知らせinformation

一覧はこちら 積水ハウス
  • 賃貸管理
  • 入居者様
  • 不動産購入
  • 不動産売却
  • 土地・空き家活用
  • ピタットハウス所沢店
    04-2995-1101
    • 埼玉県所沢市くすのき台3-18-8
    • 9:30〜17:30
    • 毎週火曜日・水曜日
    店舗紹介
  • ピタットハウス小手指店
    04-2948-0110
    • 埼玉県所沢市小手指町4-1-20
    • 9:30〜17:30
    • 毎週火曜日・水曜日
    店舗紹介
  • ピタットハウス新所沢店
    04-2922-0110
    • 埼玉県所沢市けやき台2-31-1
    • 9:30〜17:30
    • 毎週火曜日・水曜日
    店舗紹介
  • ノザワ建設株式会社
    04-2948-5111

    埼玉県所沢市小手指町4-10-6

    会社概要
  • ノザワリフォーム株式会社
    04-2938-5555

    埼玉県所沢市小手指町4-1-20-2F

    会社概要