仮称)西所沢1丁目マンション 西所沢の1LDK賃貸マンション!|ピタットハウス新所沢店 (株)ノザワ産業

株式会社ノザワ産業営業時間:9:30〜18:00 定休日:毎週火曜日・水曜日
TOPページ
賃貸物件検索
所沢市の賃貸情報一覧
仮称)西所沢1丁目マンション 西所沢の1LDK賃貸マンション

仮称)西所沢1丁目マンション 西所沢の1LDK賃貸マンション 

  • 13.3万円 / 管理費: 無 / 共益費:5,000円
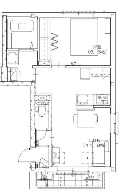
  • 間取り:1LDK / 専有面積:43.11m2
  • 敷金:1ヶ月 / 礼金:1ヶ月 / 保証金:0ヶ月 / 敷引・償却: 0ヶ月-
【建物外観】  【間取】  【建物外観】  【建物外観】  【周辺】 西友西所沢店
【建物外観】 
【間取】 
【建物外観】 
【建物外観】 
【周辺】 西友西所沢店
  • 【建物外観】 
  • 【間取】 
  • 【建物外観】 
  • 【建物外観】 
  • 【周辺】 西友西所沢店

【スタッフからのイチオシポイント!】仮称)西所沢1丁目マンション

エアコン エアコン2台以上 オートロック
埼玉県所沢市西所沢1丁目【西武狭山線 西所沢駅徒歩1分】にある1LDK賃貸マンションです。
新築築の3階建てのマンションで、お部屋は3階建ての1階部分です。
物件の広さは43.11m2で人気の1LDKです。
※お部屋のもっと詳しい内容や入居時期、諸条件のご相談など、ホームページには掲載が間に合わず載せきれていない情報もございます。
気になることが御座いましたらお気軽にメールにてお問い合わせください。
04-2922-0110
ピタットハウス新所沢店 (株)ノザワ産業
お問い合わせNO:RHS-13674491

物件基本情報

所在地 埼玉県所沢市西所沢1丁目   周辺MAP
交通 西武狭山線 「西所沢駅」 徒歩1分
西武新宿線 「航空公園駅」 徒歩21分
種別 / 構造 マンション / ALC造(軽量気泡コンクリート造) 主要採光面 所在階 / 階数 1階 / 3階
築年月 新築  間取り 1LDK( 洋室5.5畳/LDK11.8畳(*階) ) 専有面積 43.11m2

物件詳細情報

損保 更新料 あり 1ヶ月 鍵交換代 -
駐車場 なし 近隣駐車場   契約期間
借家区分
2年 普通
現況 未完成 入居可能日 2026年3月中旬 取引態様 媒介
保証人代行会社 仲介手数料 110% バイク置き場
その他費用

設備詳細情報

キッチン
  • システムキッチン
  • 対面式キッチン
  • ガスコンロ
  • 3口以上コンロ
バス・トイレ
  • 給湯
  • バストイレ別
  • シャワー
  • 追焚機能浴室
  • 洗面所独立
  • シャワー付洗面台
  • 温水洗浄便座
  • オートバス
  • 室内洗濯機置き場
住空間
  • 角部屋
  • バルコニー
  • フローリング
  • エアコン
設備・サービス
  • クロゼット
  • シューズボックス
  • 全居室収納
  • TVインターホン
  • オートロック
  • 宅配ボックス
  • 駐輪場
条件・その他  ガス:都市 / 水道:公営 / 排水:下水 / 2人入居:可 / ペット:可能 / ルームシェア:相談
コメント エアコン エアコン2台以上 オートロック
備 考 *

学区情報

小学校区
()
中学校区
()
情報更新日:2026年02月14日 次回更新予定日:2026年02月28日
※各種情報と差異がある場合は現況優先となります
※物件情報の学区情報について
当サイト物件情報に記載されております通学区域(学区)情報は、国土数値情報ダウンロードサービスが提供する小学校区データ【2016年度】及び中学校区データ【2016年度】を元に加工したものですので、記載情報が現在の学区域と異なる場合がございます。国土数値情報ダウンロードサービスのWEBサイト上で記述通り、データは必ずしも正確とは言えません。また、通学区域(学区)は毎年見直しの対象となりますので、そちらを踏まえ学区情報は参考としてご活用下さい。

こちらの物件の空室状況

部屋番号 賃料 共益費 / 管理費 間取り 専有面積 敷金 礼金 お気に入り 物件詳細
101 13.3万円 5,000円 / - 1LDK 42.23m2 1ヶ月 1ヶ月 お気に入り 物件詳細
102 13.3万円 5,000円 / - 1LDK 43.11m2 1ヶ月 1ヶ月 お気に入り 物件詳細
201 13.4万円 5,000円 / - 1LDK 42.23m2 1ヶ月 1ヶ月 お気に入り 物件詳細
202 13.4万円 5,000円 / - 1LDK 43.11m2 1ヶ月 1ヶ月 お気に入り 物件詳細
301 13.5万円 5,000円 / - 1LDK 42.23m2 1ヶ月 1ヶ月 お気に入り 物件詳細
302 13.5万円 5,000円 / - 1LDK 43.11m2 1ヶ月 1ヶ月 お気に入り 物件詳細
04-2922-0110
ピタットハウス新所沢店 (株)ノザワ産業
お問い合わせNO:RHS-13674491

この物件に似た物件をチェック!

  • 賃貸マンション 13.4万円

    航空公園駅 徒歩5分

    2LDK(57.06u)

    積水ハウス(シャーメゾン)・ホテルライク・オートロック・インターネット無料・宅配ボックスあり


閲覧した物件の履歴

閲覧した物件の一覧を見る

最近検索した条件一覧



気になったら今すぐ!カンタンお問合せ



お問合せ内容必須
【備考欄】
希望条件・来店希望日・その他質問がございましたらご記入ください。
お客様情報
お名前必須
連絡先必須 メールアドレス
電話番号



※ご入力いただいたお客さまの個人情報は、「個人情報の取扱いについて」に基づき適正に取り扱います。必ずお読みになり、同意の上お問い合わせください。




※ご記入いただいたメールアドレス宛てに、お問合せ内容の確認メールをお送りいたします。
※Yahoo!メールなどのフリーメールをご利用の場合、迷惑メールフォルダに入る場合があります。
 迷惑メールのフォルダ・設定等をご確認下さい。
 


▲ページのTOPへ戻る


お問合せはこちら

ピタットハウス新所沢店 (株)ノザワ産業 04-2922-0110

お知らせinformation

一覧はこちら 積水ハウス
  • 賃貸管理
  • 入居者様
  • 不動産購入
  • 不動産売却
  • 土地・空き家活用
  • ピタットハウス所沢店
    04-2995-1101
    • 埼玉県所沢市くすのき台3-18-8
    • 9:30〜18:00
    • 毎週火曜日・水曜日
    店舗紹介
  • ピタットハウス小手指店
    04-2948-0110
    • 埼玉県所沢市小手指町4-1-20
    • 9:30〜18:00
    • 毎週火曜日・水曜日
    店舗紹介
  • ピタットハウス新所沢店
    04-2922-0110
    • 埼玉県所沢市けやき台2-31-1
    • 9:30〜18:00
    • 毎週火曜日・水曜日
    店舗紹介
  • ノザワ建設株式会社
    04-2948-5111

    埼玉県所沢市小手指町4-10-6

    会社概要
  • ノザワリフォーム株式会社
    04-2938-5555

    埼玉県所沢市小手指町4-1-20-2F

    公式ホームページへ